+41 91 825 75 75
info@sgimmobiliare.ch
Via Cantonale
6916 Grancia
Dal lunedì al venerdì
9.00-12.00 | 14.00-17.30
click to enable zoom
loading...
We didn't find any results
open map
View Roadmap Satellite Hybrid Terrain My Location Fullscreen
Transport
Supermarkets
Schools
Restaurants
Pharmacies
Hospitals
Your search results

Vendiamo a Sementina interessante spazio commerciale

CHF 150,000

Vendita

Dettagli

Località: Sementina


Locali:


ID proprietà: 37631


Caratteristiche

Descrizione

È alla ricerca di uno spazio per aprire la sua attività? Vuole investire in uno spazio commerciale da affittare?

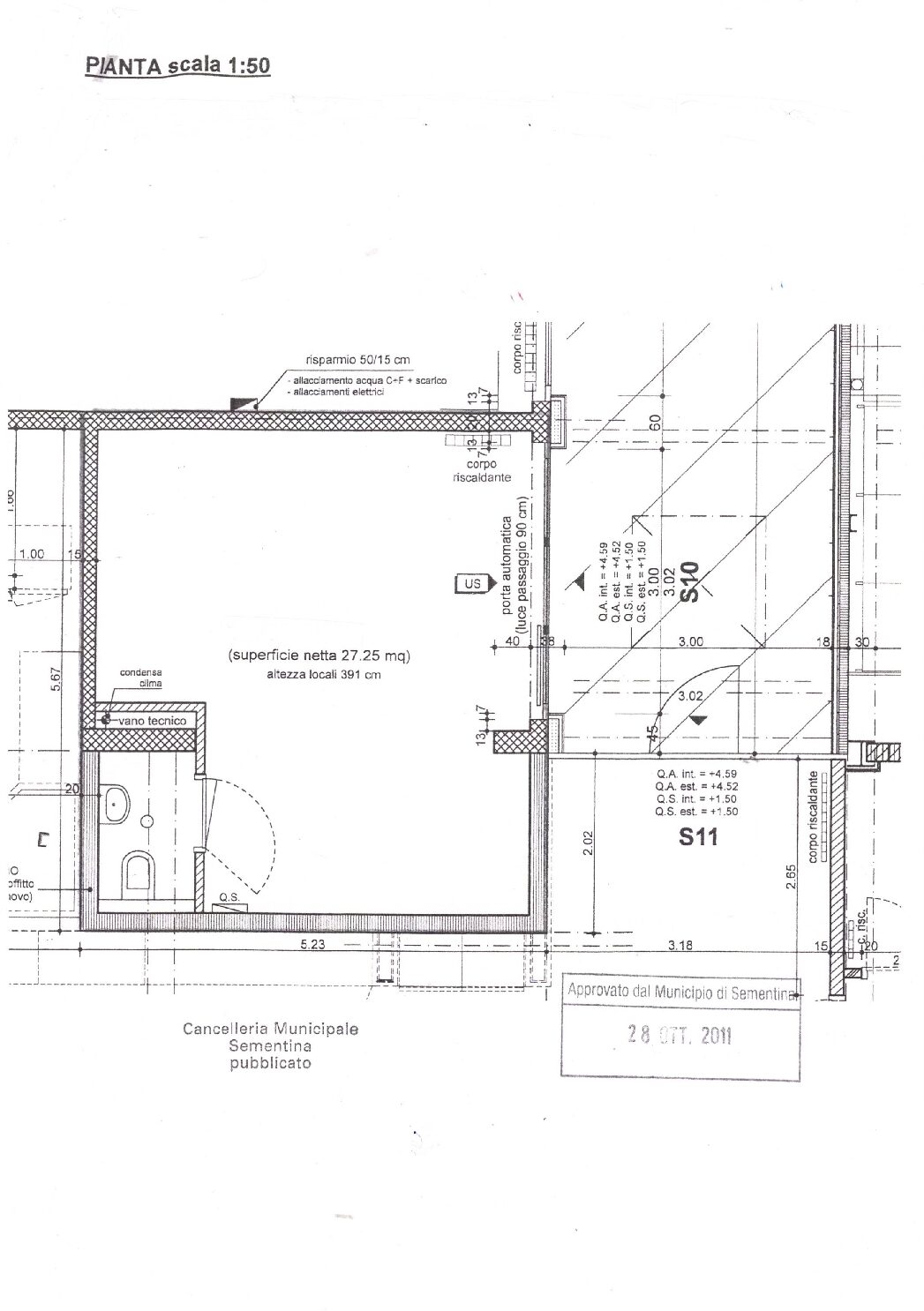
Vendiamo, nel Centro Coop di Sementina in via Locarno 3, grazioso e accogliente spazio commerciale situato in un punto nevralgico di Sementina. La zona è molto ben frequentata e dispone di parcheggi esterni. Supermercato presente nella Residenza, Wine bar, macelleria, Posta.

Superficie netta: 27.25 m2

Altezza locali: 3.91 m

Prezzo: 150’000.- CHF

Servizio igienico presente all’interno dello spazio.

 

Luogo

Transport
Supermarkets
Schools
Restaurants
Pharmacies
Hospitals

Sono interessata/o a questa proprietà

Compare Listings