Vendiamo moderne e spaziose ville a Moleno
A partire da CHF 890,000
Caratteristiche
Descrizione
Cerca il luogo ideale dove vivere immerso nel verde, in una zona tranquilla, baciata dal sole tutto l’anno, circondata dalla natura e dalla quiete?
Abbiamo gli spazi abitativi che desidera.
La Residenza Ai Pozz, in via Gèr, composta da 8 ville unifamiliari con giardino, si trova in una zona tranquilla nel pittoresco Comune di Bellinzona, luogo ideale per chi ama la tranquillità ma vuole usufruire di buoni collegamenti.
La Residenza è caratterizzata da un’architettura moderna che dà grande risalto alla luminosità degli ambienti grazie anche alle ampie vetrate e agli spazi aperti. I colori chiari delle facciate e degli interni si inseriscono perfettamente nel paesaggio circostante.
Ambienti soleggiati, luminosi, immersi nel verde e dotati di ampi spazi rivolti verso l’esterno (con un giardino e bel terrazzo coperto). Cura di ogni dettaglio, per rendere i locali ancora più accoglienti e comodi.
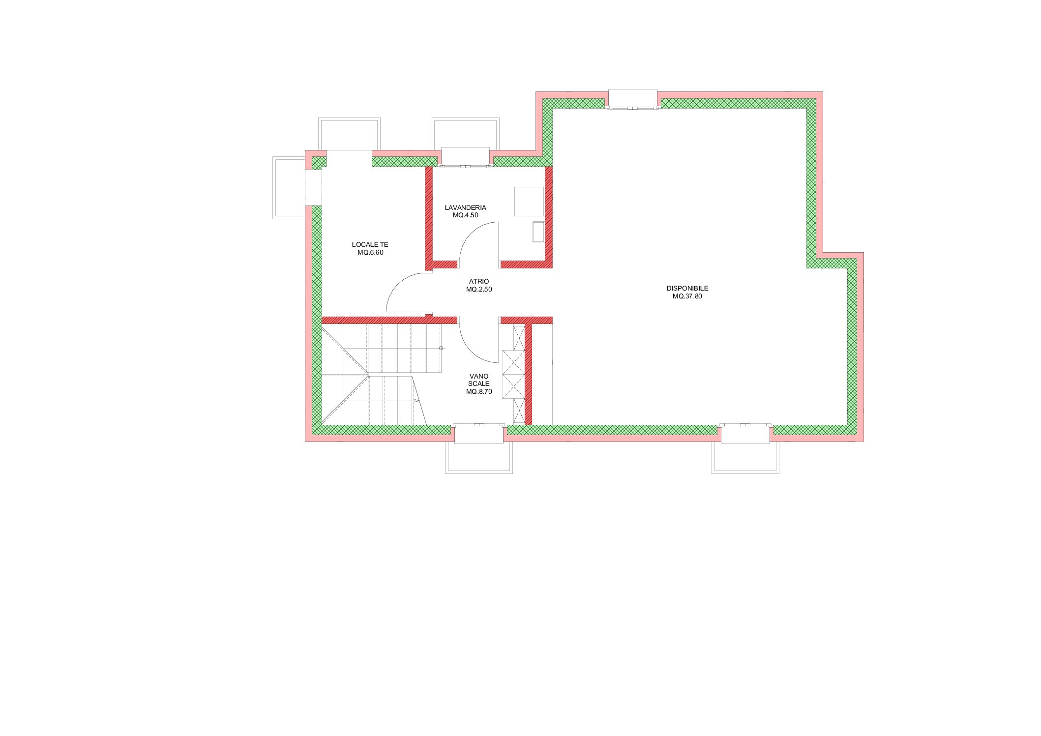
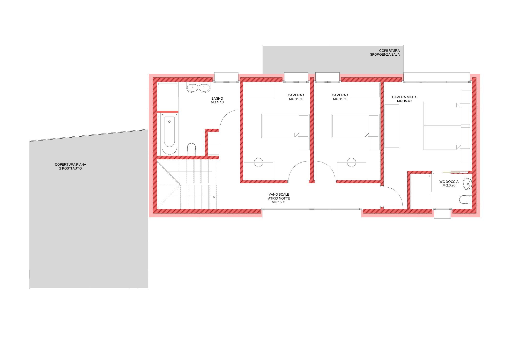
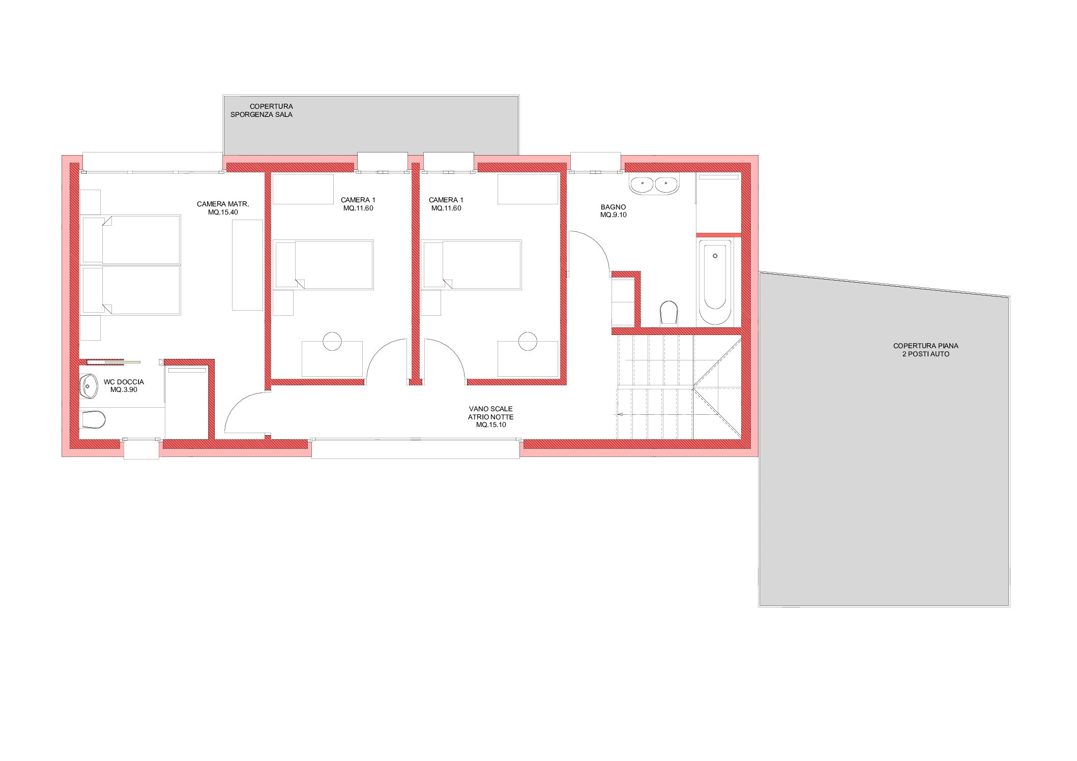
Ogni villa, composta da 5.5 locali e circondata da un generoso giardino, è disposta su tre piani, comprende moderni tripli servizi, tre ampie camere da letto, un vasto soggiorno, una lavanderia, uno studio, una cantina, un grande disponibile e due parcheggi coperti.
Gli interni godono di ampie metrature: le ville hanno spazi ampi, terrazze coperte, stanze con superfici generose. La cura attenta di ogni dettaglio assicura massimo comfort ed una qualità di vita ottimale.
Le ville sono ancora personalizzabili e offrono la possibilità, a chi è interessato ad acquistarle, di apportare modifiche negli ambienti interni, rendendole uniche.
Il quartiere di Moleno appartiene al comune di Bellinzona. Si trova all’imbocco della Riviera sulla sponda destra del fiume Ticino.
Moleno è situato in posizione strategica rispetto alle vie di comunicazione regionali, in poco tempo si può raggiungere il raccordo autostradale di Castione-Bellinzona Nord.
Il fondo su cui sono state costruite le 8 villette si trova a ca. 260 m sul livello del mare, con orientamento del terreno e degli edifici verso sud, senza ostacoli, gli edifici godono di un ottimo soleggiamento per tutto l’anno.
Distanze
Claro: ca. 2 km
Bellinzona: ca. 8 km
Lugano: ca. 28 km
Locarno: ca. 32 km
MQ. SUL: ca. 156
Prezzo di vendita: a partire da 890’000.- CHF
Sito dedicato al progetto: https://residenzaaipozz.sgimmobiliare.ch/







